Byt 3+kk, Praha - Strašnice

< Zpět

Typ objektu:

Byt

Podlaží:

2

Řešení:

3+kk

Velikost:

55 m2

Localita:

Na padesátém,Praha - Strašnice

Cena:

9 190 000 Kč

Popis :

Přímý prodej od majitele – bez provize.

Právní servis v ceně.



Nabízíme byt 3+kk v Praze 10 – Strašnice, 5 minut od metra Skalka.



Byt prošel v roce 2026 kompletní nadstandardní rekonstrukcí: vinylové podlahy, plastová okna s trojskly, bezpečnostní dveře, moderní interiérové dveře, sádrové stěrky, nová elektroinstalace, voda i odpady.



Kuchyňská linka je vybavena vestavěnými spotřebiči Gorenje, koupelna moderní se sanitou Hansgrohe.



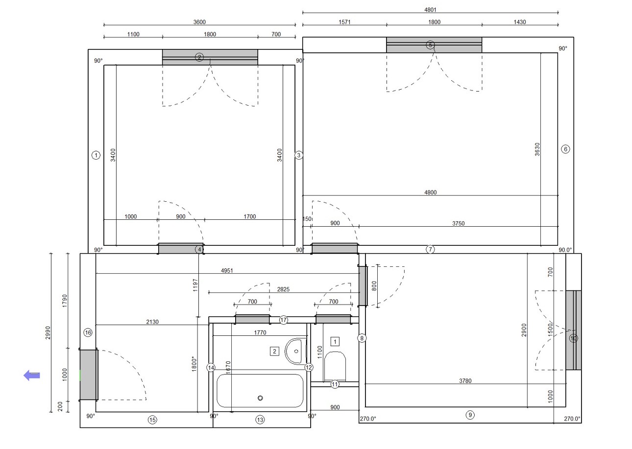
Dispozice: obývací pokoj s kuchyňským koutem, 2 ložnice, koupelna, samostatné WC.



Výborná dostupnost – metro Skalka, autobus před domem, tramvaj i vlak v blízkosti. Kompletní občanská vybavenost v okolí.



Vhodné k bydlení i jako investice.



Pro více informací nás kontaktujte.






Nezávazná konzultace

Odesláním souhlasíte se zpracováním osobních údajů.

IČO 08714924 • Sídlo: Radlická 48, Praha 150 00

Logo.